小幡太田316GIMUCOB棟

39.9万円(0.66万円/坪)

管理 / 共益費 -

愛知県名古屋市守山区小幡太田316

名鉄瀬戸線「小幡」駅徒歩13分

名古屋市営名城線「茶屋ヶ坂」駅徒歩26分

ガイドウェイバス志段味線「金屋」駅徒歩34分

賃料
39.9万円(0.66万円/坪)
敷金(保証金)
0ヶ月(119.7万円)
所在地
愛知県名古屋市守山区小幡太田316
交通

名鉄瀬戸線小幡」駅 徒歩13分

名古屋市営名城線茶屋ヶ坂」駅 徒歩26分

ガイドウェイバス志段味線金屋」駅 徒歩34分

管理 / 共益費
-
礼金
19.9万円
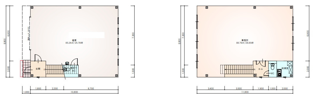
建物面積
198.88㎡
築年月
2025年3月(新築)

物件の特徴

  • TVモニタ付きインターホン

セールスポイント

ぜひ一度見ていただきたい、人気の新築「小幡太田316GIMUCOA棟」です。賃料は41.8万円です。駐車スペースが只今5台分程度ございます。駅が周辺に2つあるので行動範囲が広がります。室内設備はエアコン3台など豊富に揃っており、過ごしやすいお部屋になっております。礼金1ヶ月の物件です。好立地であり、利便性の高い環境にあります。

ポイント

2沿線利用可 礼金1ヶ月 新築物件 IT重説 対応物件 東南角住戸

基本情報

保証金
119.7万円
敷引 / 償却
- / 1ヶ月
建物構造
鉄骨造
坪単価
0.66万円
更新料
3.3万円
所在階 / 階建て
- / 2階建
築年月
2025年3月(新築)
駐車場
有(5台) 0円
総戸数
3戸
現況
完成済み
入居可能時期
即時
契約期間
2年
保険会社 / 料金
無  / -
保証会社 / 料金
必加入 / Casa
初回:総賃料の100%(年間更新料:総家賃の10%) 月額:口振手数料330円
初回:総賃料の100%(年間更新料:総家賃の10%) 月額:口振手数料330円
その他条件
口座振替手数料:330円(月額)
取引条件の
有効期限
2025年11月26日

設備条件

設備条件
  • 事務所可 / OAフロア / 仲介手数料無料 / 飲食不可 / 好立地 / 公営水道 / 公共下水 / 電気有 / IHクッキングヒーター / コンロ1口 / 洗面台 / トイレ2ヶ所 / エアコン / TVモニタ付インターホン / ディンプルキー / エアコン2台 / エアコン3台 / 角部屋

その他

取引態様
貸主
物件番号
96754774
管理コード
-
情報更新日
2025年11月12日
次回更新予定日
2025年11月26日

  1. 小幡太田316GIMUCOA棟

    名古屋市守山区小幡太田

    - (198.88㎡)

    39.9万円

  2. 小幡太田316GIMUCOC棟

    名古屋市守山区小幡太田

    - (198.88㎡)

    39.9万円

  3. 守牧町51GIMUCO

    名古屋市守山区守牧町

    - (148.80㎡)

    33万円

  4. 川宮町461事務所付倉庫西B棟

    名古屋市守山区川宮町

    - (238.92㎡)

    44万円

小幡太田316GIMUCOB棟

小幡太田316GIMUCOB棟

39.9万円

-

60.16坪(198.88㎡)

お気軽にお問い合わせください

無料お問い合わせ

貝沼建設株式会社 守山支店

0120-210-655

09:00~18:30

(休:年末年始)